

Haltegriff Nylon 400
NB Nylon Care 400 Duschhandlauf 0486210 Weiß
KBN NORMDL7640115
Zwei in Eins
Dieser Nylon 400 Duschhandlauf von Normbau mündet nahtlos in einer Brausehalterstange mit stufenlosem Brausehalter. Ebenso lassen sich Höhe- und Neigungseinstellung der Brause stufenlos anpassen. Der Duschhandlauf kann – je nach Einsatzort – sowohl links- als auch rechtsseitig montiert werden und kann zum Einhängen eines Duschsitzes genutzt werden.
Produktserie Nylon 400

Als Erweiterung zu Nylon 300 zeichnet sich die Designlinie Nylon 400 von Normbau ebenfalls durch ihre klare Formensprache und langlebige Materialien aus. Zusätzlich sind sämtliche Handläufe und Stützen entlang ihrer Griffzonen mit rutschsicheren, strukturierten Beschichtungen ausgestattet. Für noch mehr Sicherheit im barrierefreien Bad.
Ausschreibungstexte
Nylon Care als bewährte Produktfamilie
mit hoher Variantenvielfalt durch drei
Serien für verschiedenste
Anforderungen, mit
korrosionsgeschütztem durchgehendem
Stahlkern, Brausehalter mit stufenloser
und leichtgängiger Höhen- und
Winkeleinstellung, wartungsfrei mit
selbstjustierender Klemmkraft, mit
langen Bedienhebel und seitlichem
Vielzweckhaken, Aufnahmekonus passend
für Handbrausen unterschiedlicher
Fabrikate, mit Dichtronde zur
normgerechten Abdichtung der Bohrpunkte
(DIN 18534-1), mit Kunststoffrosette
70 mm für verdeckte Verschraubung und
glasfaserverstärktem
Kunststoffunterteil, bei
Leichtbauwänden wird eine
Hinterfütterung aus mind. 20 mm dickem
mehrschichtverleimtem Holz benötigt,
gemäß Verordnung (EU) 2017/745 über
Medizinprodukte produziert,
CE-zertifiziert, erfüllt die
Anforderungen nach DIN 18040 und ÖNORM
B 1600, Lieferung mit Edelstahl
Torx-Schrauben 6 x 70 mm und Dübeln
mit hoher Variantenvielfalt durch drei
Serien für verschiedenste
Anforderungen, mit
korrosionsgeschütztem durchgehendem
Stahlkern, Brausehalter mit stufenloser
und leichtgängiger Höhen- und
Winkeleinstellung, wartungsfrei mit
selbstjustierender Klemmkraft, mit
langen Bedienhebel und seitlichem
Vielzweckhaken, Aufnahmekonus passend
für Handbrausen unterschiedlicher
Fabrikate, mit Dichtronde zur
normgerechten Abdichtung der Bohrpunkte
(DIN 18534-1), mit Kunststoffrosette
70 mm für verdeckte Verschraubung und
glasfaserverstärktem
Kunststoffunterteil, bei
Leichtbauwänden wird eine
Hinterfütterung aus mind. 20 mm dickem
mehrschichtverleimtem Holz benötigt,
gemäß Verordnung (EU) 2017/745 über
Medizinprodukte produziert,
CE-zertifiziert, erfüllt die
Anforderungen nach DIN 18040 und ÖNORM
B 1600, Lieferung mit Edelstahl
Torx-Schrauben 6 x 70 mm und Dübeln
Dokumente
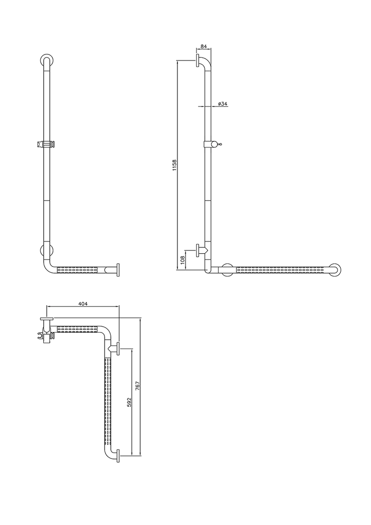
Vermaßte Strichzeichnung
Datenblatt
Technische Spezifikation
- Höhe (cm)
- 115.8
- Tiefe (cm)
- 8.4
- Winkel (°)
- 90
- Gewicht (kg)
- 8.49
- Montageart
- Wandmontage
- Belastbarkeit (kg)
- 175
- Antibakterielle Behandlung
- nein
- Anzahl der Befestigungspunkte zum Bauteil
- 5
- Akzentfarbe
- weiß
- Verdeckte Befestigung
- nein
- Gewerblich öffentlicher Bereich (GÖB)
- ja
- Farbe
- weiß
- Farbgruppe (Hauptfarbe)
- weiß
- Oberfläche
- sonstige
- Werkstoff
- Kunststoff
- RAL-Nummer
- 9016
- Bauform
- abgewinkelt
- Barrierefrei
- ja
- Produkttyp/Modellnummer
- NY.486.210
Bitte warten...
Bitte warten...
Bitte warten...