Eck-Komplettdusche Vinata Comfort
Komplettdusche Vinata Comfort Eck Hoch anthrazit 1160x877 ESG klar Roth
KBN VINCE12090HAZ
All-Inclusive-Paket für den neuen Duschbereich
Die Vinata Comfort Komplettdusche von Roth hat alles, was Sie für umfangreichen Duschgenuss brauchen: eine flache Mineralguss-Duschwanne für einen hürdenlosen Einstieg, eine Duschabtrennung mit Glas-Schiebetür sowie ein hochwertiges Brauseset, das sich optimal in das moderne Design der Duschkabine fügt. Eine Halterung für die Montage eines Duschklappsitzes und zusätzliche Stützgriffe ergänzen die umfangreiche Ausstattung und sorgen für maximalen Komfort in allen Lebenslagen.
Für den Einbau in Ecken konzipiert.
Ausschreibungstexte
Mit der Roth Komplettdusche Vinata ist
der schnelle Austausch einer alten
Badewanne gegen eine komfortable Dusche
möglich. Das innovative Renovierungs-
konzept besteht aus einer hochwertigen
Glas-Schiebetür, Glas-Rückwänden und
einer Mineralgussduschwanne.
Die Dusche selbst ist aufgrund der hohen
werkseitigen Vormontage in rund drei
Stunden montiert. Roth Vinata gibt es in
zwei Ausführungen. Das Modell Spirit
ist eine großzügige Duschlösung für die
ganze Familie. Die Variante Comfort
steht für eine komfortable und sichere
Nutzung im Alter. Zur Ausstattung
gehören eine Halterung für die Montage
des Vinata Duschklappsitzes und
zusätzliche Haltegriffe (Comfort).
Die Qualitätsdusche ist mit Glas-
Schiebetüren ausgestattet. Die Montage
ist in Eck- und Nischensituationen
möglich.
Die Glasrückwände sind in weiß oder
anthrazit erhältlich. Das hochwertige
Brause-Set mit Thermostatmischer von
Hansgrohe ist auf das moderne Design der
Roth Vinata abgestimmt. Die integrierte
Mineralgussduschwanne mit niedrigem
Einstieg bietet stabilen Stand. Die
rutschfeste Standfläche (nur Ausführung
Comfort) entspricht der Bewertungsklasse
C DIN 51097 (PN24). Alle Glaselemente
bestehen aus sechs Millimeter starkem
Einscheibensicherheitsglas mit ETC-
Beschichtung (Easy To Clean). Das Glas
der Schiebetür ist in klar oder mit
Flowdekor erhältlich.
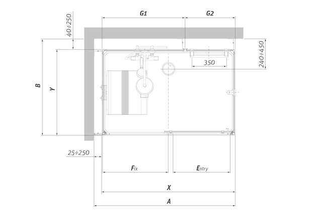
Die Roth Vinata gibt es in Breiten von
1200 bis 1700 mm und Tiefen von
700 bis 900 mm.
Ausführung: Eck
Rückwandhöhe: Hoch
Gesamthöhe: 2030 mm
Größe Duschwanne: 1160 x 877 mm
Oberfläche Duschwanne: Rutschhemmend
(PN24)
Rückwandfarbe: Anthrazit
Ausführung Duschabtrennung: Schiebetür
Glasart Duschabtrennung: ESG klar
Glasbeschichtung: Easy To Clean (ETC)
Glasstärke: 6 mm
Profilmaterial: Aluminium
Profilfarbe: Silber Hochglanz
Mit Sitzvorrichtung: Ja
Anzahl Haltegriffe: 1
Armaturen: Hansgrohe Crometta 160
Showerpipe mit Thermostatmischer
Leistungserklärung:
Duschabtrennung nach DIN EN 14428
Nachkaufgarantie: 10 Jahre
Montage:
Hinweise entsprechend Beschreibung
beachten
Hersteller: Roth Werke GmbH
Modell: Vinata
Materialnummer: 1135008514
Im Lieferumfang:
Befestigungsmaterial
Montageanleitung
Gewährleistungsurkunde
der schnelle Austausch einer alten
Badewanne gegen eine komfortable Dusche
möglich. Das innovative Renovierungs-
konzept besteht aus einer hochwertigen
Glas-Schiebetür, Glas-Rückwänden und
einer Mineralgussduschwanne.
Die Dusche selbst ist aufgrund der hohen
werkseitigen Vormontage in rund drei
Stunden montiert. Roth Vinata gibt es in
zwei Ausführungen. Das Modell Spirit
ist eine großzügige Duschlösung für die
ganze Familie. Die Variante Comfort
steht für eine komfortable und sichere
Nutzung im Alter. Zur Ausstattung
gehören eine Halterung für die Montage
des Vinata Duschklappsitzes und
zusätzliche Haltegriffe (Comfort).
Die Qualitätsdusche ist mit Glas-
Schiebetüren ausgestattet. Die Montage
ist in Eck- und Nischensituationen
möglich.
Die Glasrückwände sind in weiß oder
anthrazit erhältlich. Das hochwertige
Brause-Set mit Thermostatmischer von
Hansgrohe ist auf das moderne Design der
Roth Vinata abgestimmt. Die integrierte
Mineralgussduschwanne mit niedrigem
Einstieg bietet stabilen Stand. Die
rutschfeste Standfläche (nur Ausführung
Comfort) entspricht der Bewertungsklasse
C DIN 51097 (PN24). Alle Glaselemente
bestehen aus sechs Millimeter starkem
Einscheibensicherheitsglas mit ETC-
Beschichtung (Easy To Clean). Das Glas
der Schiebetür ist in klar oder mit
Flowdekor erhältlich.
Die Roth Vinata gibt es in Breiten von
1200 bis 1700 mm und Tiefen von
700 bis 900 mm.
Ausführung: Eck
Rückwandhöhe: Hoch
Gesamthöhe: 2030 mm
Größe Duschwanne: 1160 x 877 mm
Oberfläche Duschwanne: Rutschhemmend
(PN24)
Rückwandfarbe: Anthrazit
Ausführung Duschabtrennung: Schiebetür
Glasart Duschabtrennung: ESG klar
Glasbeschichtung: Easy To Clean (ETC)
Glasstärke: 6 mm
Profilmaterial: Aluminium
Profilfarbe: Silber Hochglanz
Mit Sitzvorrichtung: Ja
Anzahl Haltegriffe: 1
Armaturen: Hansgrohe Crometta 160
Showerpipe mit Thermostatmischer
Leistungserklärung:
Duschabtrennung nach DIN EN 14428
Nachkaufgarantie: 10 Jahre
Montage:
Hinweise entsprechend Beschreibung
beachten
Hersteller: Roth Werke GmbH
Modell: Vinata
Materialnummer: 1135008514
Im Lieferumfang:
Befestigungsmaterial
Montageanleitung
Gewährleistungsurkunde
Dokumente
Technische Spezifikation
- Höhe (cm)
- 216
- Kleinste Breite (cm)
- 87.7
- Größte Breite (cm)
- 116
- Mit Handbrause
- ja
- Art der Tür
- Schiebetür
- Form der Einbausituation
- Rechteck
- Freistehend
- ja
- Glasart
- ESG / Einscheiben-Sicherheitsglas
- Farbe der Duschwanne
- anthrazit
- Farbe Profil/Scharniere
- silber
- Farbgruppe der Duschwanne
- weiß
- Farbgruppe Profil/Scharniere
- silber
- Oberfläche/Dekor
- klar
- Werkstoff der Duschwanne
- Naturstein
- Werkstoff der Wände
- Sicherheitsglas
- Ausführung der Armatur
- Temperierarmatur
Bitte warten...
Bitte warten...
Bitte warten...